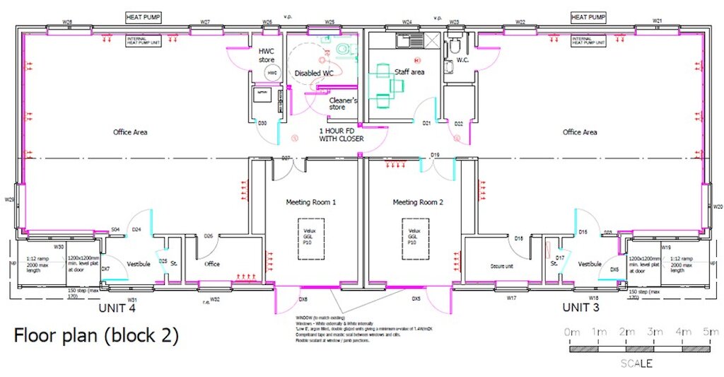
We have been undertaking major renovations at the Units this year in order to make them more energy efficient as well as a few layout changes. These renovations have been funded by the Carbon Neutral Islands Project and once completed both of the units will be rated as carbon neutral.
The renovations include:
- Solar Panels
- Insulation
- Air source heating
- New windows and doors
- Removal of the garage doors
- Installation of accesible toilets
- New kitchen facilities
Once the renovations are complete the Units will become a hub for the community.
It will house:
- NYDC offices
- Meeting space
- Education and training centre
- Digital suite
- Co working space
- Secure storage
- Small office to rent
- Space for 2 crafts people to work
- Retail space for local crafts
- Tourist information
- Performance and event space

